41987:中古戸建
| 価格 | 9,980万円 |
|---|---|
| 所在地 | 西宮市剣谷町 |
| 交通 | 阪急神戸線 阪急夙川駅まで 徒歩13分 阪急神戸線 阪急西宮北口駅 |
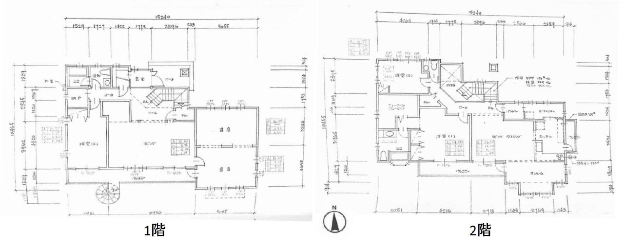
| 間取 | 5SLDK |
| 土地面積 | 463.07m²(140.07坪) |
| 建物面積 | 124.7m²(37.72坪) |
| 私道面積 | |
| 築年月 | 2000/04 |
| 学区 | 小学校区:苦楽園小学校 中学校区:苦楽園中学校 |
| 建物構造 | 木造 |
|---|---|
| 階建 | 地上2階建 |
| 建ぺい率 | 40% |
| 容積率 | 100% |
| 地目 | 宅地 |
| 用途地域 | 第一種低層住居専用地域 |
| 土地権利 | 所有権 |
| 取引態様 | 仲介 |
| 引渡時期 | 相談 |
| セットバック | |
|---|---|
| 接道 | 北 5m(幅員) 公道 |
| 諸費用 | |
| 他法条例 | |
| 建築確認番号 | |
| 取引条件有効期限 | 令和07年12月16日 |
特色
駐車場、都市ガス
コメント
・カナダ製建築の注文住宅 ・お庭はイングリッシュガーデン様式でBBQができる煉瓦製の窯があります ・西宮一望のパノラマ眺望 ・敷地面積約140坪
周辺地図
位置情報に関するご注意:現在位置情報は精査中の為、正確ではない場合があります。あくまで参考程度の情報となります。











